Casa indipendente in vendita

Alcamo, Via della Stella Cinese - Alcamo Marina
€ 80.000
3 locali 3 locali
65 Mq 65 Mq
1 bagno 1 bagno

Casa indipendente in vendita

Alcamo, Via della Stella Cinese - Alcamo Marina

Descrizione annuncio

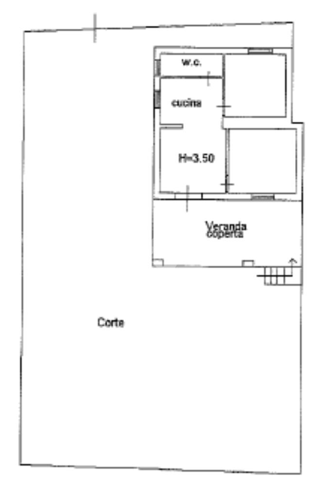
Ad Alcamo Marina, a pochi passi dal mare, proponiamo un accogliente indipendente situato al piano terra, recentemente ristrutturato e pronto per essere abitato. L’abitazione si compone di un unico ambiente luminoso con cucina e soggiorno, due comode camere da letto e un bagno moderno e funzionale. All’esterno si trova una spaziosa veranda ideale per godere di momenti di relax all’aperto, oltre a posti auto di pertinenza.

La casa si presenta in ottime condizioni e rappresenta la soluzione ideale sia come residenza principale sia come casa vacanze, grazie alla posizione tranquilla e alla vicinanza al mare e ai principali servizi.

E' possibile visionarlo tutti i giorni previo appuntamento telefonico chiamando al nostro numero fisso 0924041240 oppure inviando un messaggio tramite il servizio WHATSAPP al numero 375 5031221. Il nostro franchising, su richiesta, mette a disposizione dei propri clienti un consulente che, si occupa della mediazione creditizia ed assicurativa.
Contattateci se volete una consulenza, gratuita, per sapere quale sia la scelta più adatta alle vostre esigenze.

Mostra tutto

Nelle vicinanze

Trasporto pubblico Trasporto pubblico
Castellammare del Golfo
Castellammare del Golfo
2,7 Km
Farmacia Farmacia
Dispensario Dottoressa Lamia Antonina
680 m
Bar Bar
Bluwater
1,0 Km
Ristoranti Ristoranti
Alkamar
830 m
La Capannina
870 m
Sunshine
1,0 Km
Taverna del Carrettiere
1,0 Km
Bandiera Gialla
1,1 Km
Mostra tutto

Caratteristiche

Rif.:
61131161
Piano:
1 di 1 (Piano terra)
Posti auto:
3
Balconi:
1
Terrazzi:
1
Camere da letto:
2
Mostra tutto
Prezzo Prezzo
€ 80.000
Prezzo box Prezzo box
€ 1
Rata mutuo Rata mutuo
€ 369 / mese
Spese annue Spese annue
€ 1
Proponi il tuo prezzoProponi il tuo prezzo

Classe Energetica

G
G
G
G
G
G
G
G
G
EP globale rinnovabile:
175.50 kW h/m² anno
Anno di costruzione:
1995
Riscaldamento:
Autonomo
Tipo impianto:
Ad aria
Tipo alimentazione:
Aria

Ti interessa visionare l'immobile?

Fissa un appuntamento  Fissa un appuntamento

Richiedi informazioni

* Questi campi sono obbligatori

Calcola il tuo mutuo

Semplice e senza impegno
Anticipo

( % )
Mutuo

( % )

pochi semplici passi

inserisci i tuoi dati
Questionario completato
Grazie per aver richiesto un appuntamento senza impegno con un nostro Consulente del Credito e Assicurativo.

Hai inserito correttamente tutti i dati necessari e a breve riceverai una e-mail con un link da convalidare per inviare i tuoi dati.
Affiliato
Alcamo Europa Srl
Viale Europa, 80 91011 Alcamo (TP)

Il nostro staff


  • Giovanni Gueccia
    Affiliato

  • Letizia Piccolo
    Collaboratrice
Viale Europa, 80 91011 Alcamo (TP)
Zona: Alcamo
Mostra su mappa
Orari: Mattina 9.00 - 13.00 Pomeriggio 15.30 - 19.30
Affiliato
Alcamo Europa Srl
Viale Europa, 80 91011 Alcamo (TP)

2025 Tecnocasa Franchising S.p.A. - P. IVA 08365160152 - Via Monte Bianco 60/A 20089 Rozzano (MI). Ogni agenzia ha un proprio titolare ed è autonoma. Privacy policy | Policy utilizzo | Cookie policy