Villa singola in vendita

Terrasini, Contrada Agli Androni - Agliandroni
€ 430.000
5 locali 5 locali
170 Mq 170 Mq
2 bagni 2 bagni

Villa singola in vendita

Terrasini, Contrada Agli Androni - Agliandroni

Descrizione annuncio

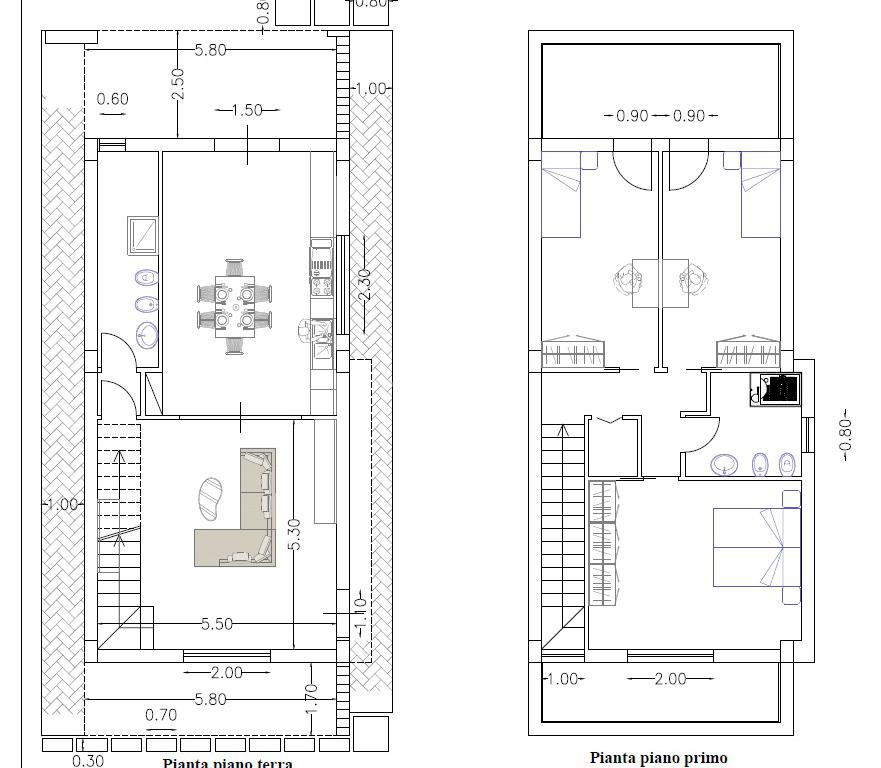
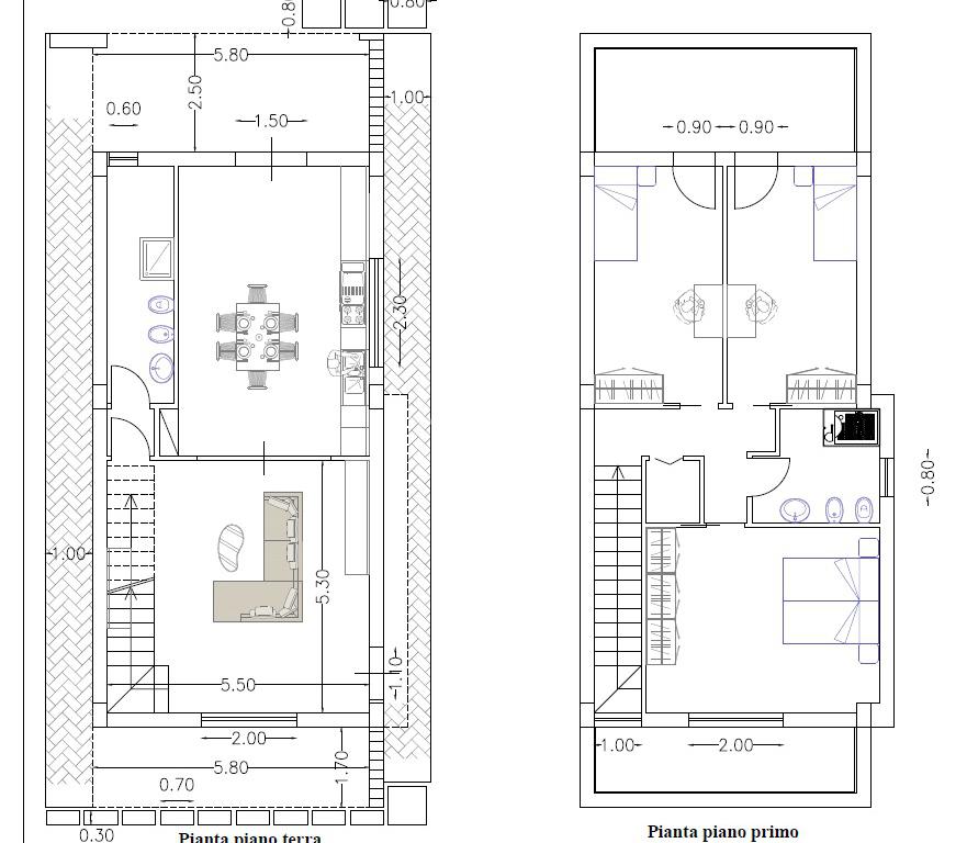
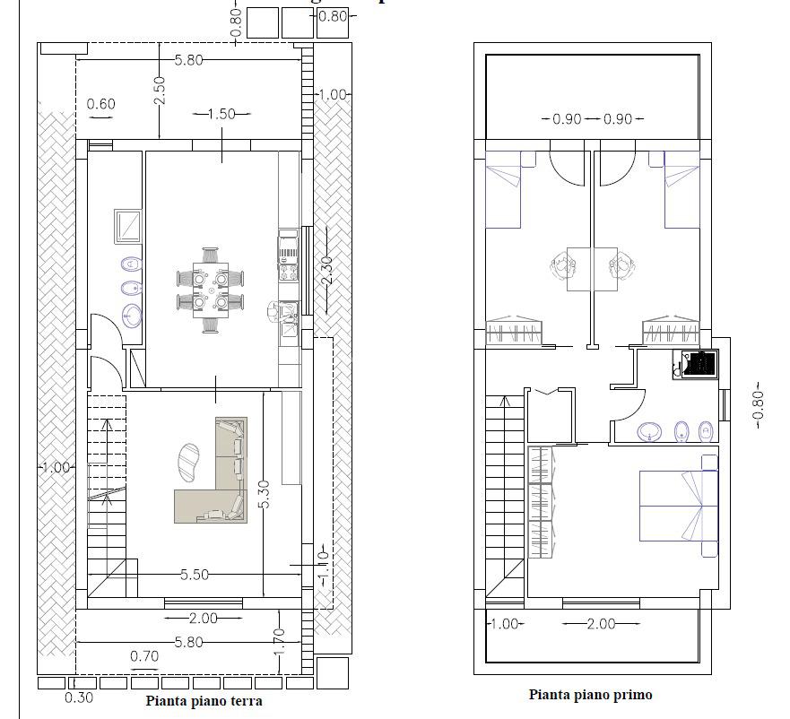
In zona residenziale 'Agli Androni', proponiamo in vendita VILLA SINGOLA DI NUOVA COSTRUZIONE di 170 metri con in un lotto di terreno di 360 metri quadrati dotato di predisposizione per piscina.

La villa verrà consegnata al cliente con la formula 'chiavi in mano' e si trova attualmente in stato di costruzione. Per questo motivo, oggi vi è la possibilità di apportare alcune modifiche a proprio gusto.

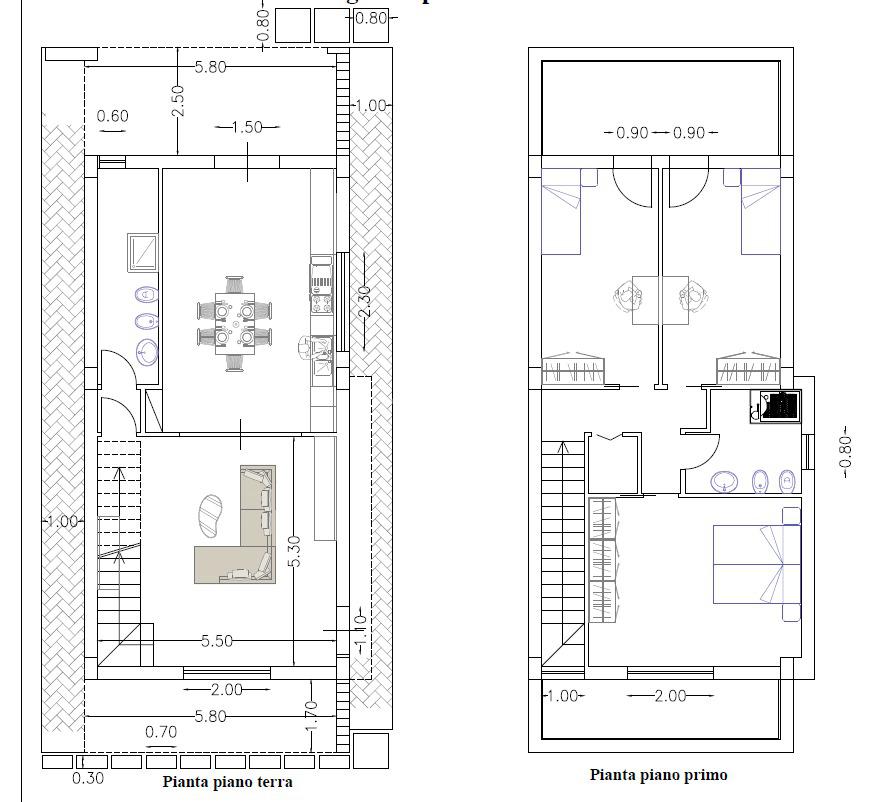
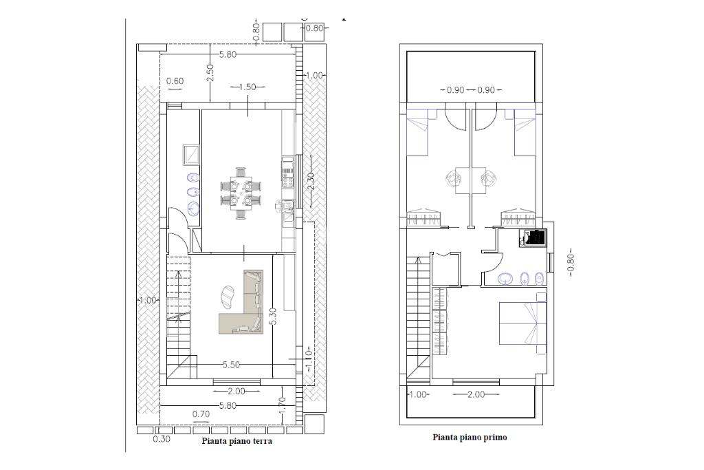
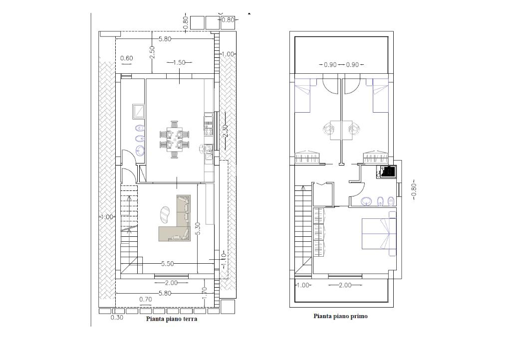
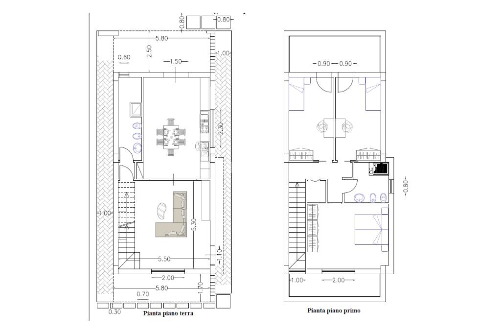
Il progetto prevede una costruzione su due livelli ed è così composta:

- al PIANO TERRA troviamo cucina abitabile, soggiorno annesso ad una veranda chiudibile e bagno.

- al PRIMO PIANO, raggiungibile con scala interna, troviamo camera da letto con balcone, due camerette con terrazzo, bagno e ripostiglio.

Inoltre, l'immobile gode di tripla esposizione garantendo luminosità e vista sul giardino.

La villa sarà provvista di tutti i comfort all'avanguardia con le ultime innovazioni edilizie come prospetto a cappotto, impianti solari termici e fotovoltaici.

E' possibile visionarla tutti i giorni previo appuntamento telefonico chiamando al nostro numero +39 327 672 5408 oppure inviando un messaggio tramite il servizio WHATSAPP.

Il nostro franchising, su richiesta, mette a disposizione dei propri clienti un consulente che, si occupa della mediazione creditizia ed assicurativa. Contattateci se volete una consulenza gratuita, per sapere quale sia la scelta più adatta alle vostre esigenze.

Seguici sui nostri canali facebook ed instagram.

Mostra tutto

Nelle vicinanze

Trasporto pubblico Trasporto pubblico
Cinisi Terrasini
Cinisi Terrasini
2,9 Km
Ricariche auto elettriche Ricariche auto elettriche
EnelX Terrasini Carlo Alberto Dalla Chiesa
1,6 Km
EnelX Terrasini Vittorio Emanuele
1,6 Km
Scuole Scuole
Scuola Elementare "Don Milani"
2,2 Km
Farmacia Farmacia
Farmacia del Duomo
1,9 Km
Supermercati Supermercati
Decò
1,3 Km
Mio
1,7 Km
Eurospin
1,8 Km
Negozi Negozi
Panificio Maniaci
2,0 Km
Bar Bar
I Leoni
1,8 Km
Enjoy
1,9 Km
Coral Beach Bar
2,8 Km
Ristoranti Ristoranti
Sea club
840 m
iCLUB Lounge Restaurant
1,1 Km
El Bocadito
1,7 Km
Rustico
1,9 Km
Arabesque
1,9 Km
Mostra tutto

Caratteristiche

Rif.:
61166540
Piano:
2 di 2 (Piano su più livelli)
Posti auto:
2
Balconi:
1
Terrazzi:
1
Camere da letto:
3
Mostra tutto
Prezzo Prezzo
€ 430.000
Rata mutuo Rata mutuo
€ 2.008 / mese
Spese annue Spese annue
€ 1
Proponi il tuo prezzoProponi il tuo prezzo

Classe Energetica

A1
A1
A1
A1
A1
A1
A1
A1
A1
EP invernale del fabbricato:
EP estiva del fabbricato:
Anno di costruzione:
2026
Riscaldamento:
Autonomo
Tipo impianto:
Ad aria
Tipo alimentazione:
Altro

Ti interessa visionare l'immobile?

Fissa un appuntamento  Fissa un appuntamento

Richiedi informazioni

Clicca su Leggi per aprire l'informativa
* Questi campi sono obbligatori

Calcola il tuo mutuo

Semplice e senza impegno
Anticipo

( % )
Mutuo

( % )

pochi semplici passi

inserisci i tuoi dati
Questionario completato
Grazie per aver richiesto un appuntamento senza impegno con un nostro Consulente del Credito e Assicurativo.

Hai inserito correttamente tutti i dati necessari e a breve riceverai una e-mail con un link da convalidare per inviare i tuoi dati.
Affiliato
Alcamo Europa Srl
Viale Europa, 80 91011 Alcamo (TP)

Il nostro staff


  • Giovanni Gueccia
    Affiliato

  • Vincenzo Cipriani
    Collaboratore

  • Letizia Piccolo
    Collaboratrice

  • Lara Asta
    Coordinatrice
Viale Europa, 80 91011 Alcamo (TP)
Zona: Alcamo
Mostra su mappa
Orari: Mattina 9.00 - 13.00 Pomeriggio 15.30 - 19.30
Affiliato
Alcamo Europa Srl
Viale Europa, 80 91011 Alcamo (TP)

2026 Tecnocasa Franchising S.p.A. - P. IVA 08365160152 - Via Monte Bianco 60/A 20089 Rozzano (MI). Ogni agenzia ha un proprio titolare ed è autonoma. Privacy policy | Policy utilizzo | Cookie policy